© JoomAvatar.com
Joomla Extension-
Joomla Template
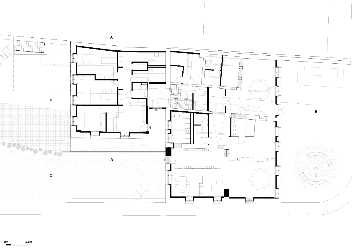
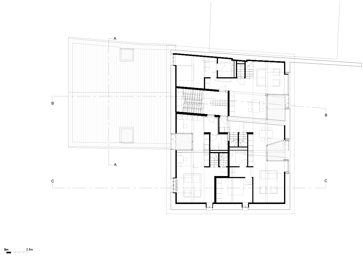
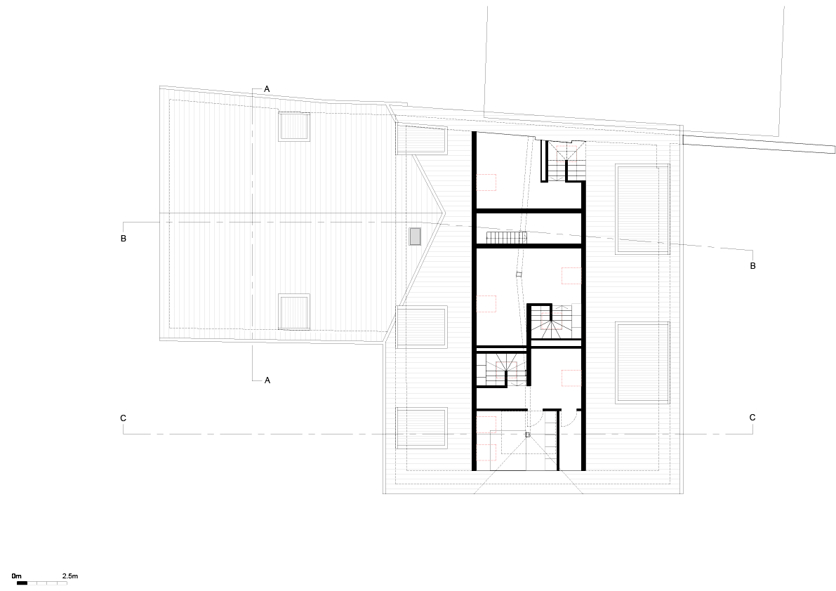
Type:Etude transformation ancien collège
Objet: Logements + Crèche + Locaux médicaux
Année: 2019-2020
Maître d'ouvrage: Service technique commune de Founex
Collaborateurs: Matteo Trevisan, Jules Mallet













