© JoomAvatar.com
Joomla Extension-
Joomla Template
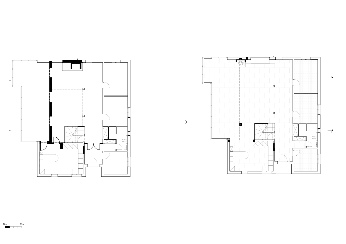
Type:Rénovation / Transformation
Objet: Villa
Année: 2019-2020
Maître d'ouvrage: Privé
Collaborateurs: Eduard Kuyumcu, Mallet Jules
Ingénieurs : Terres Saintes Ingénieurs Civils
Photographies : © Eduard Kuyumcu











